C o m m o d ity D e scrip tio n
Item
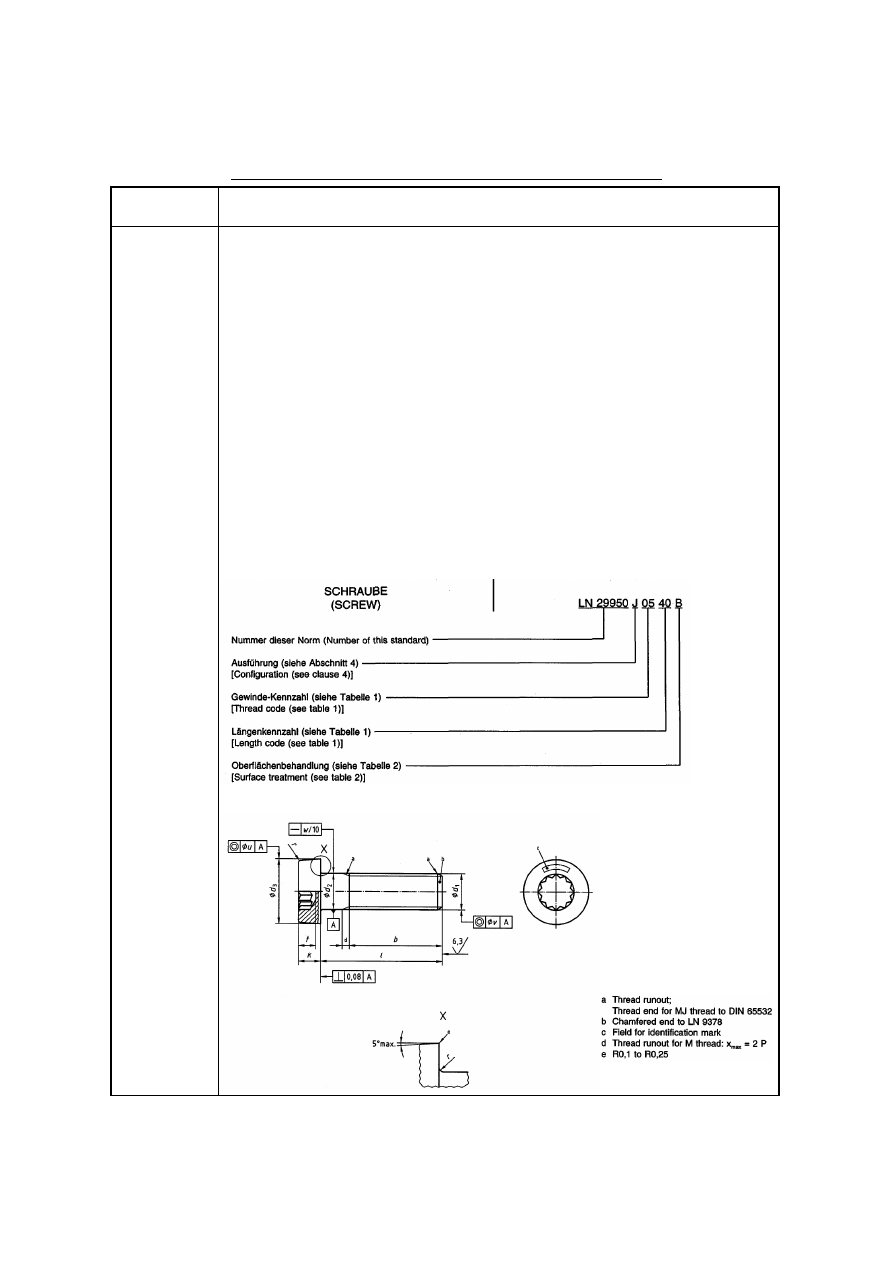
LN 29950 Screw
Description
-. LN29950/aerospace
Cheese head screw with internal serration, titanium alloy
-. Quantity of screws
LN29950J0306B 190 ea LN29950J0307B 43 ea
LN29950J0406B 34 ea LN29950J0407B 25 ea
LN29950J0408B 25 ea LN29950J0409B 25 ea
LN29950J0413B 25 ea LN29950J0417B 25 ea
LN29950J0420B 25 ea LN29950J0424B 25 ea
LN29950J0426B 25 ea LN29950J0514B 25 ea
LN29950J0519B 25 ea LN29950J0525B 65 ea
LN29950J0621B 202 ea LN29950J0624B 25 ea
LN29950J0625B 25 ea LN29950J0629B 25 ea
LN29950J0641B 65 ea LN29950J0822B 70 ea
LN29950J0826B 25 ea LN29950J0834B 65 ea
-. Designation
-. Dimension
-. Threads
-. Material & Surface treatment
-. Reference : LN29950 and Standard Specification